For sale Middle Floor Apartment Costa Del Sol Higueron € 759.000,-

Higueron

from € 759.000,-

DESCRIPTION

Experience refined coastal living in this brand-new luxury apartment set within the prestigious Higuerón Resort. Designed with a sleek, contemporary aesthetic, this high-end home offers an elegant open-plan layout where the living and kitchen areas flow seamlessly together—perfectly balancing comfort and sophistication. Floor-to-ceiling windows flood the space with natural light and frame breathtaking panoramic views, creating a seamless connection between indoor living and the surrounding landscape. The interiors are finished to the highest standard, with premium materials, stylish detailing, and a modern, minimalist feel throughout. The apartment offers 2 bedrooms and 2 bathrooms and is sold fully furnished as seen, allowing for a turnkey experience—simply arrive and enjoy. Residents benefit from beautifully maintained communal areas, including a stunning swimming pool set within landscaped gardens, sauna and co-working area, as well as 24-hour security for complete peace of mind. The property includes two private parking spaces, an electric vehicle charging point, and a secure storage room. Located within the exclusive Higuerón Resort, you’ll have access to a wide range of world-class amenities, including a luxury spa, state-of-the-art fitness centre, fine dining restaurants, beach club, and sports facilities. The resort is known for its tranquil setting, privacy, and exceptional lifestyle offering. Just a short distance from the beach, this apartment perfectly combines serene resort living with easy access to the coast, making it an ideal choice for both a permanent residence or an elegant holiday retreat. Welcome!

Responsive image
0m²
Responsive image
2
Responsive image
2
Responsive image
yes
Responsive image
0m²
Responsive image
2
Responsive image
2
Responsive image
yes

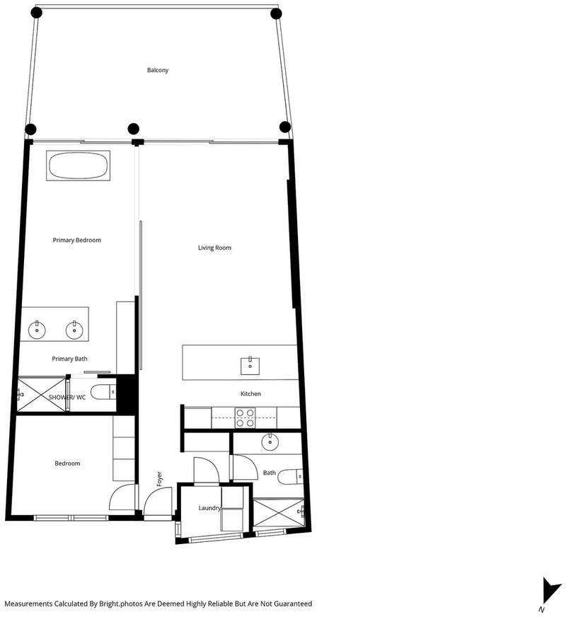
Bedrooms: 2

Bathrooms: 2

Lot size: 0m²

Living area: 117m²

Pool: yes

Garden: yes

Parking: yes

Cooling:

Storage:

Elevator:

Completion: 2025

Floor: Yes

AREA
Setting: Close To Golf, Close To Port, Close To Shops, Close To Sea, Close To Town, Close To Schools Orientation: South Condition: Excellent, New Construction Pool: Communal Climate Control: Air Conditioning Views: Sea, Pool Features: Covered Terrace, Lift, Fitted Wardrobes, Near Transport, Sauna, Storage Room, Ensuite Bathroom Furniture: Fully Furnished Kitchen: Fully Fitted Garden: Communal Security: Gated Complex, 24 Hour Security Parking: Garage

REQUEST FOR MORE INFORMATION

Please fill in the form below to receive more information about this new development. (* are required fields)

You can also contact the office by e-mail or phone:
+34 952 830 378 / +34 677 670 480

SEND US AN ENQUIRY


Please consider to accept our privacy policy



Alternatives

[alt]

For sale Apartment Costa Del Sol Fuengirola € 695.000,-

Price € 695.000,-

More information
[alt]

For sale Apartment Costa Del Sol Marbella Centro € 765.000,-

Price € 765.000,-

More information
[alt]

For sale Apartment Duplex Costa Del Sol Marbella East € 740.000,-

Price € 740.000,-

More information
[alt]

For sale Apartment Costa Del Sol Benalmádena Costa € 669.000,-

Price € 669.000,-

More information