For sale Detached Villa Costa Del Sol Mijas € 1.295.000,-

Mijas

from € 1.295.000,-

DESCRIPTION

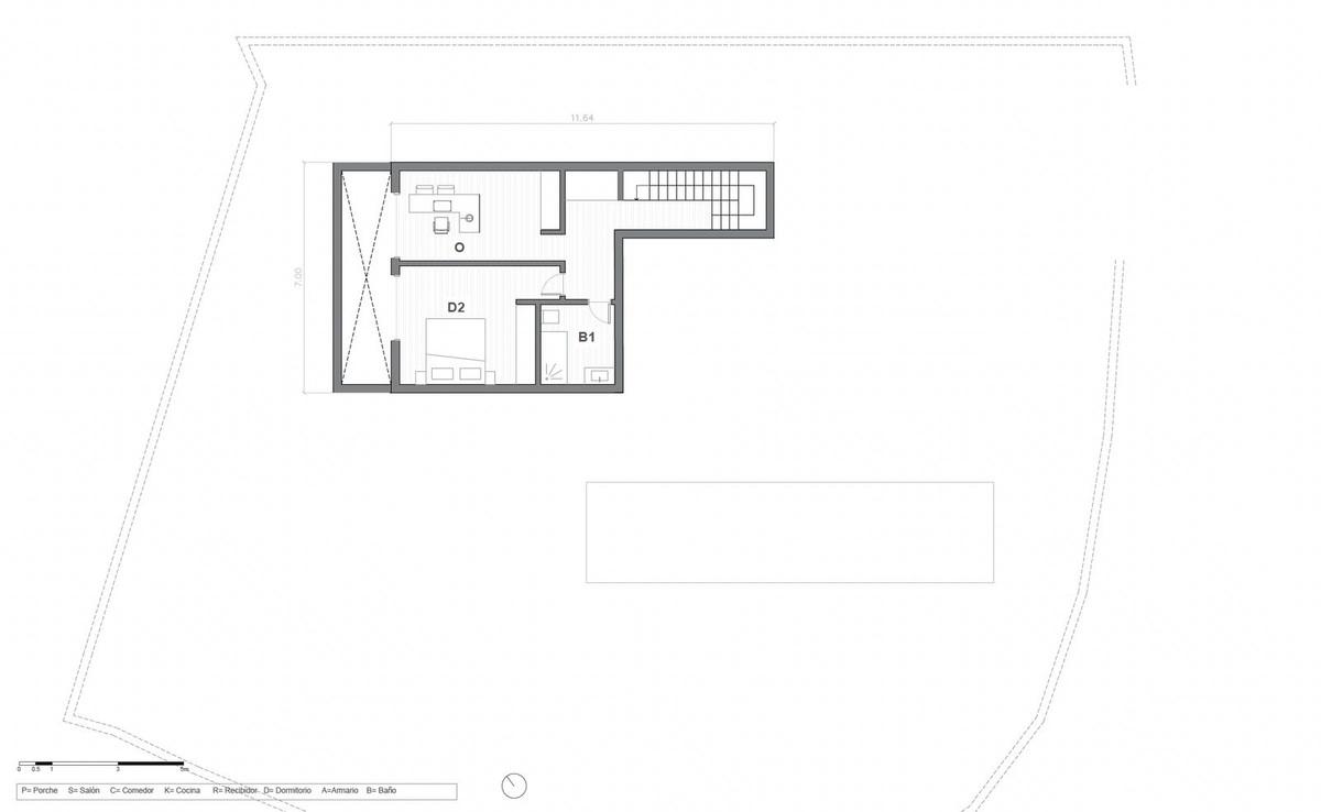
High-Quality Energy Efficient Villa in a Demanded Area of Mijas This contemporary villa is located in the municipality of Mijas, one of the most popular destinations in Costa del Sol. The municipality covers an extensive area that extends from the sandy beaches on the coast to the mountains. This fantastic cosmopolitan enclave boasts a pleasantly mild climate throughout the year, convenient road connections, proximity to international Málaga-Costa del Sol Airport, developed infrastructure, endless sports and leisure options including fantastic golf courses and resorts, and, of course, a choice of real estate opportunities. The newly built villas for sale in Mijas are in a lovely peaceful setting within a sought-after residential neighborhood in the Buenavista area. At the same time the property is close to literally everything, all hustle and bustle of the lively coast is minutes away. The villa offers quick access to the main A-7 Motorway, so all points of interest are within easy reach. The villa is 4 km from the sandy beaches, 4.5 km to the center of the whitewashed Mijas Pueblo, 9 km to the center of the neighboring Fuengirola, 18 km from the Málaga-Costa del Sol Airport, and 35 km to Marbella. The villa sits within a quiet established community at the foot of the mountain on a plot of almost 700 sqm. The villa features lovely exterior areas with easy-to-maintain gardens and an outdoor pool. Covered and uncovered terraces with fantastic mountain views are natural extensions of the house to fully benefit from the outdoor living experience. In this project, the developer indeed values the use of the highest quality materials in construction and finishes with the idea to achieve maximum efficiency and maximum economic savings. The bright open-plan interiors of this villa are smartly distributed between 3 levels. The villa will be equipped with a sophisticated air-conditioning system with the lowest energy consumption. The main advantage of this system is the production of hot water for heating, showers, etc. The kitchen will be fully fitted and with top-brand appliances including a dishwasher, microwave, fridge-freezer, extractor hood, induction hood, and oven. FEATURES Interior • Air Conditioning • Barbeque • Blinds • En-Suite Bathroom • Kitchen Appliances • Laundry Room • Open-Plan Kitchen • Shower • Storage Room • Terrace • White Goods Exterior • Car Park • Private Garden • Private Pool Location • Airport (0-50 Km) • Beach (1-5 Km) • Sea View • Beautiful Nature View • Mountain View • City View • Bars / Restaurants

Responsive image
288m²
Responsive image
4
Responsive image
4
Responsive image
yes
Responsive image
288m²
Responsive image
4
Responsive image
4
Responsive image
yes

Bedrooms: 4

Bathrooms: 4

Lot size: 288m²

Living area: m²

Pool: yes

Garden: yes

Parking: yes

Cooling:

Storage:

Elevator:

Completion: 2023

Floor: Yes

AREA
Orientation: South East Condition: Excellent, New Construction Pool: Private Climate Control: Air Conditioning Views: Sea, Mountain, Garden, Pool Features: Fitted Wardrobes, Private Terrace Furniture: Optional Kitchen: Fully Fitted Garden: Private Parking: Garage, More Than One Utilities: Electricity, Drinkable Water Category: Cheap, Resale

REQUEST FOR MORE INFORMATION

Please fill in the form below to receive more information about this new development. (* are required fields)

You can also contact the office by e-mail or phone:
+34 952 830 378 / +34 677 670 480

SEND US AN ENQUIRY


Please consider to accept our privacy policy



Alternatives

[alt]

For sale Detached Villa Costa Del Sol Estepona € 1.395.000,-

Price € 1.395.000,-

More information
[alt]

For sale Detached Villa Costa Del Sol Mijas Golf € 1.300.000,-

Price € 1.300.000,-

More information
[alt]

For sale Detached Villa Costa Del Sol Marbella € 1.295.000,-

Price € 1.295.000,-

More information
[alt]

For sale Detached Villa Costa Del Sol Estepona € 1.395.000,-

Price € 1.395.000,-

More information